Windsor, Berkshire, SL4 3RW
view on map£495,000
Key features
Two bedrooms
Private balcony
Lift access
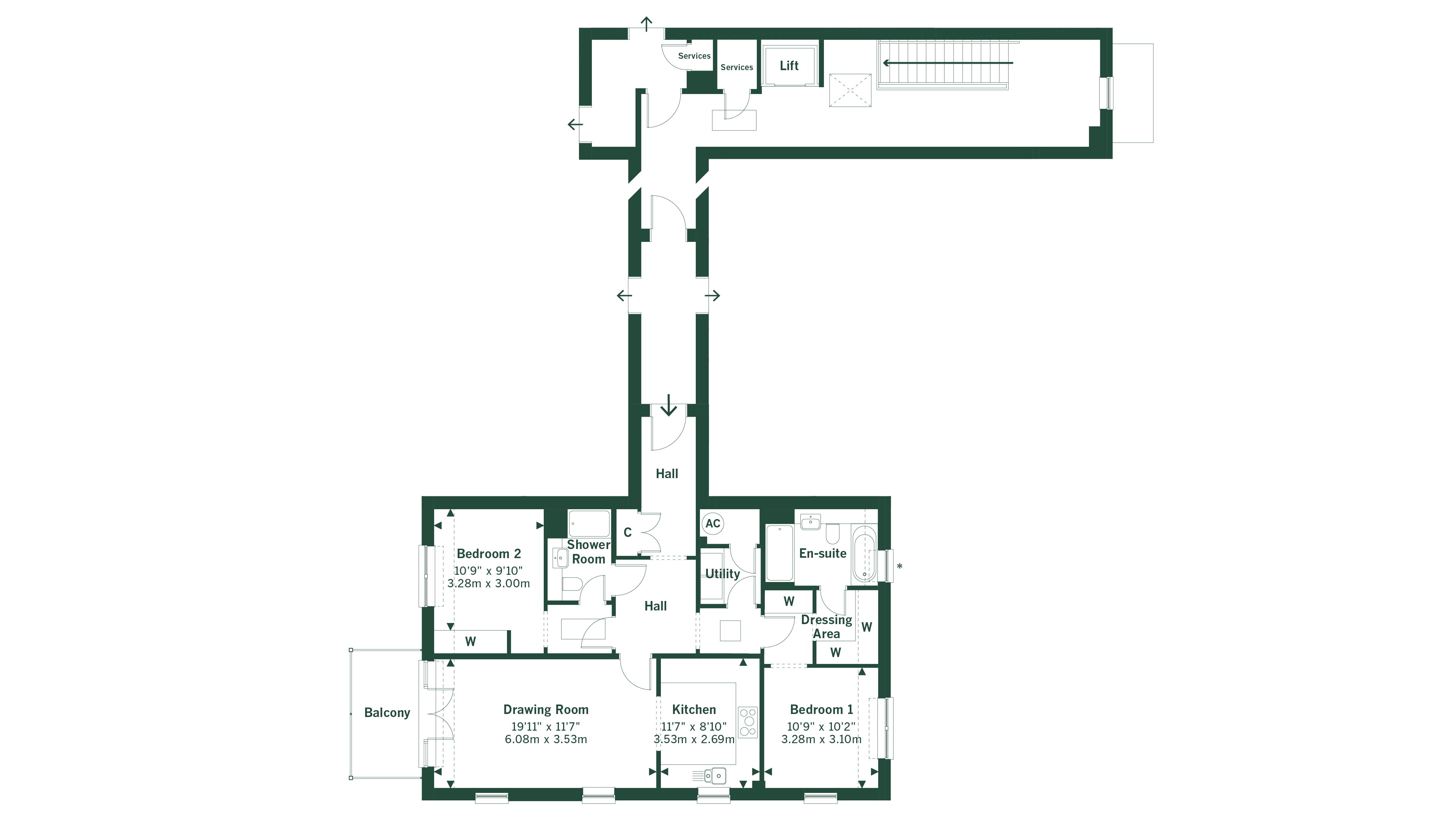
Second floor apartment
Set on the second floor with lift access, this is a spacious, light-filled two-bedroom apartment.
The drawing room has double doors opening onto a private balcony which will be the perfect place to relax with a book or the morning papers on a warm, summer’s day, or perhaps a good location to try balcony gardening to brighten those winter months.
The drawing room also leads to a stylish kitchen, with a full range of integrated appliances. The washing machine/tumble dryer are tucked away in the utility cupboard just off the hallway – so you’ll be able to keep your laundry out of sight.
The master bedroom has its own en-suite with both bath and shower and a dressing area for a luxurious feel. There’s a separate shower room adjacent to the second bedroom which makes this the perfect guest accommodation for friends or family.
* Please note: images are indicative and may not exactly represent the final property.
Estate Management
Ground maintenance
Alarm monitoring
Buildings Insurance
Professional fees
Contribution to reserve fund
External repairs & maintenance
Window cleaning
A range of integrated appliances in the kitchen
Stone surround fireplace
10 year warranty
Low energy fitment pendant lights
“We feel that our Beechcroft home was excellent value for money, given the location and the quality of the development.”
, Orford Place, Ham Common
Photo 1 of 1
5 Pinewood Place £450,000
Sold
Photo 1 of 1
10 Pinewood Place
Photo 1 of 1
16 Pinewood Place £525,000
Reserved
Photo 1 of 1
25 Pinewood Place
14 March 2022
Following a successful launch and the sale of the first new homes, leading retirement developer, Beechcroft, is anticipating a…
Read more5 February 2026
Whatever your taste or your budget, you can find somewhere to dine out in Windsor. From Michelin starred restaurants to smart restaurants…
Read more30 September 2024
Energy bills in the UK are predicted to rise further in 2025 due to issues that have increased wholesale energy costs.
Read moreWe know you value your independence but with a community of like-minded neighbours, you’ll have convivial company on hand and the opportunity to forge firm and lasting friendships.
Learn moreWhether you’re choosing a home in a favourite location, relocating in the same area or moving closer to family and friends, you’ll discover a Beechcroft home will mean more leisure time to spend with family.
Learn moreBuying Beechcroft means coming home to beautiful bathrooms and en-suites with spacious double showers, vanity units and mirrors, stylish hand-made kitchens with all the integrated appliances you’ll need, underfloor heating – and a host of luxurious touches.
Learn morePhoto 1 of 1