Windsor, Berkshire, SL4 3RW
view on map£525,000
Key features
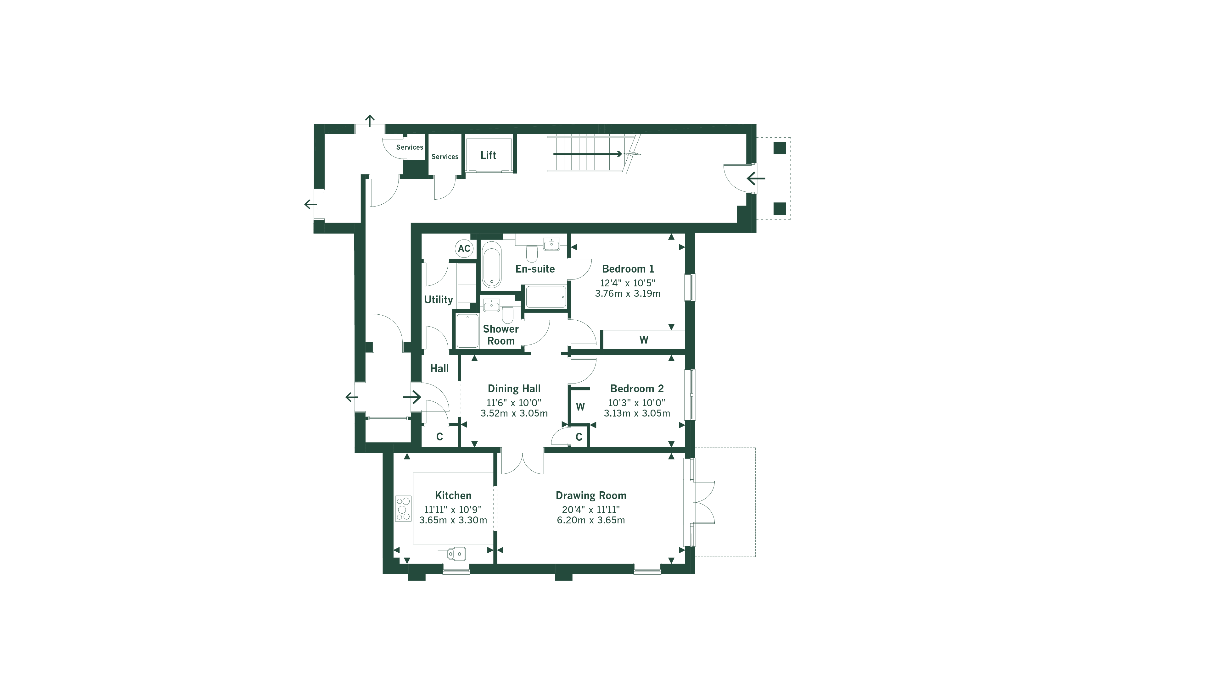
Two bedrooms
10 year warranty
Private terrace
Separate dining hall
This elegant, spacious, two-bedroom, ground floor apartment provides an abundance of beautifully designed living space along with a bright terrace space outside. The master bedroom comes complete with fitted wardrobes and an en-suite with both bath and shower.
Just across the dining hall is the second bedroom, also with fitted wardrobes, which has plenty of room for a double bed - it’s ideal guest accommodation. The hallway opens onto the generously proportioned drawing room – which leads to a stylish kitchen complete with a full range of integrated appliances. Glazed double doors lead from the drawing room onto the terrace, which is the ideal place to enjoy morning coffee in those warmer summer months – and, of course, on colder days, you’ll be able to watch the world go by from the comfort of your warm drawing room.
Estate Management
Ground maintenance
Alarm monitoring
Buildings Insurance
Professional fees
Contribution to reserve fund
External repairs & maintenance
Window cleaning
A range of integrated appliances in the kitchen
Stone surround fireplace
10 year warranty
Low energy fitment pendant lights
“We feel that our Beechcroft home was excellent value for money, given the location and the quality of the development.”
, Orford Place, Ham Common
Photo 1 of 1
5 Pinewood Place £450,000
Sold
Photo 1 of 1
10 Pinewood Place
Reserved
Photo 1 of 1
25 Pinewood Place
Photo 1 of 1
26 Pinewood Place £495,000
14 March 2022
Following a successful launch and the sale of the first new homes, leading retirement developer, Beechcroft, is anticipating a…
Read more5 February 2026
Whatever your taste or your budget, you can find somewhere to dine out in Windsor. From Michelin starred restaurants to smart restaurants…
Read more30 September 2024
Energy bills in the UK are predicted to rise further in 2025 due to issues that have increased wholesale energy costs.
Read moreWe know you value your independence but with a community of like-minded neighbours, you’ll have convivial company on hand and the opportunity to forge firm and lasting friendships.
Learn moreWhether you’re choosing a home in a favourite location, relocating in the same area or moving closer to family and friends, you’ll discover a Beechcroft home will mean more leisure time to spend with family.
Learn moreBuying Beechcroft means coming home to beautiful bathrooms and en-suites with spacious double showers, vanity units and mirrors, stylish hand-made kitchens with all the integrated appliances you’ll need, underfloor heating – and a host of luxurious touches.
Learn morePhoto 1 of 1