Please get in touch with our team to find out more, or scroll down to continue browsing our other properties.
Windsor, Berkshire, SL4 3RW
view on mapKey features
Two bedrooms
Second floor apartment
Private balcony
Private parking
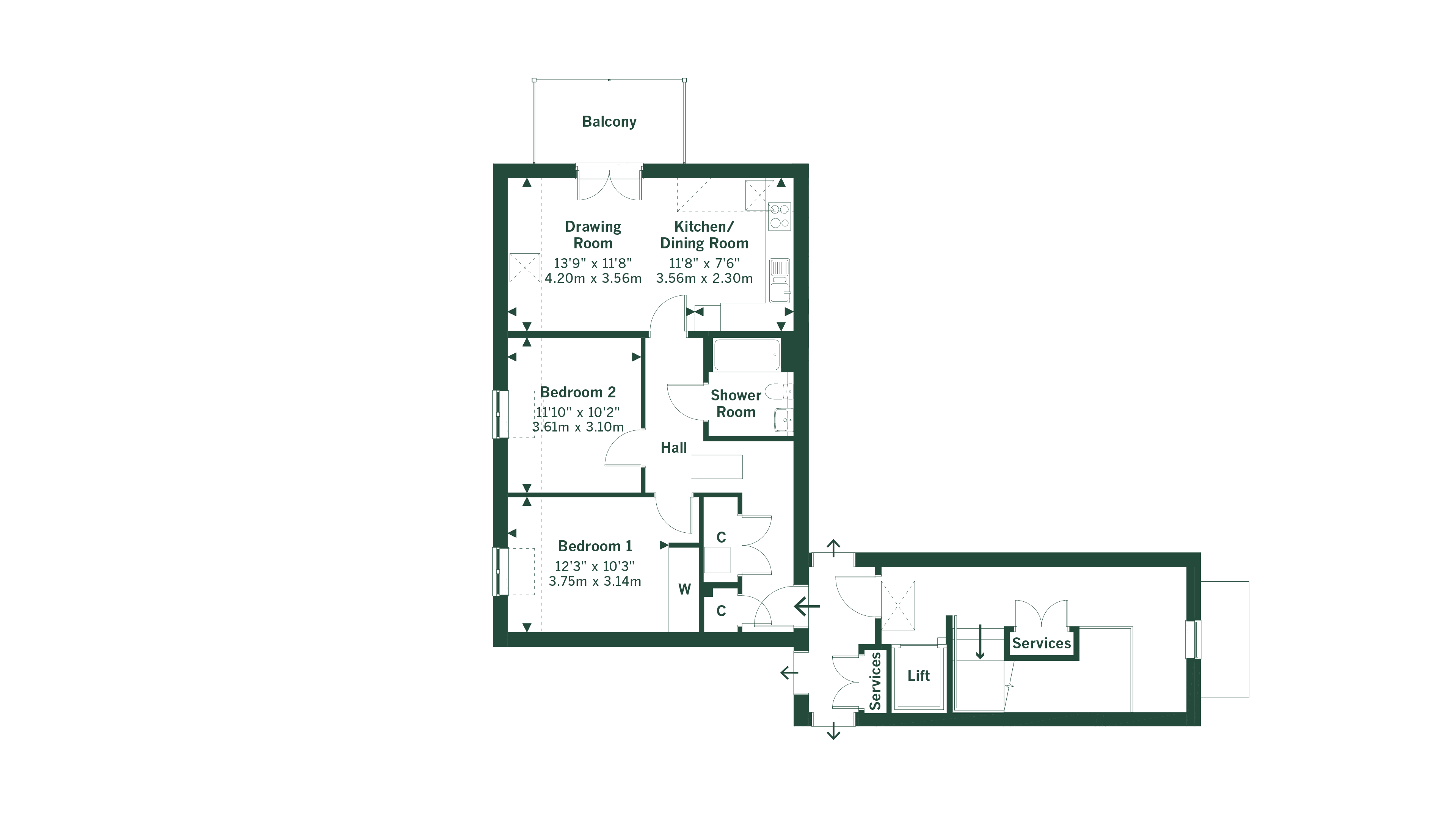
Set on the second floor with lift access, this is a spacious, light-filled two-bedroom apartment. The open plan kitchen/dining room and drawing room has double doors opening onto a private balcony which will be the perfect place to relax with a book or the morning papers on a warm, summer’s day. The master bedroom has fitted wardrobes and the second bedroom is perfect for a study, hobbies room or for visiting friends and family to stay in.
* Images shown above are for indicative purposes and may not reflect the final property.
Estate Management
Ground maintenance
Alarm monitoring
Buildings insurance
Professional fees
Reserve fund
“We feel that our Beechcroft home was excellent value for money, given the location and the quality of the development.”
, Orford Place, Ham Common
Sold
Photo 1 of 1
30 Bramley House
Sold
Photo 1 of 1
31 Bramley House
Sold
Photo 1 of 1
32 Bramley House
Sold
Photo 1 of 1
33 Bramley House
Sold
Photo 1 of 1
34 Bramley House
Sold
Photo 1 of 1
35 Bramley House
Sold
Photo 1 of 1
36 Bramley House
Sold
Photo 1 of 1
37 Bramley House
Sold
Photo 1 of 1
38 Bramley House
Reserved
Photo 1 of 1
39 Bramley House
Sold
Photo 1 of 1
41 Bramley House
14 March 2022
Following a successful launch and the sale of the first new homes, leading retirement developer, Beechcroft, is anticipating a…
Read more5 February 2026
Whatever your taste or your budget, you can find somewhere to dine out in Windsor. From Michelin starred restaurants to smart restaurants…
Read more29 August 2022
Berkshire is a great place to live – perfect for anyone who is retiring and will have time to enjoy everything the county has to…
Read moreWe know you value your independence but with a community of like-minded neighbours, you’ll have convivial company on hand and the opportunity to forge firm and lasting friendships.
Learn moreWhether you’re choosing a home in a favourite location, relocating in the same area or moving closer to family and friends, you’ll discover a Beechcroft home will mean more leisure time to spend with family.
Learn moreBuying Beechcroft means coming home to beautiful bathrooms and en-suites with spacious double showers, vanity units and mirrors, stylish hand-made kitchens with all the integrated appliances you’ll need, underfloor heating – and a host of luxurious touches.
Learn more