Please get in touch with our team to find out more, or scroll down to continue browsing our other properties.
Photo 1 of 1
14 Longcross Place £520,000
Photo 1 of 1
15 Longcross Place £525,000
Photo 1 of 1
21 Longcross Place £497,500
Photo 1 of 1
Wallingford, Oxfordshire, OX10 9EF
view on mapKey features
Two bedrooms
Ground floor apartment
Private terrace and garden
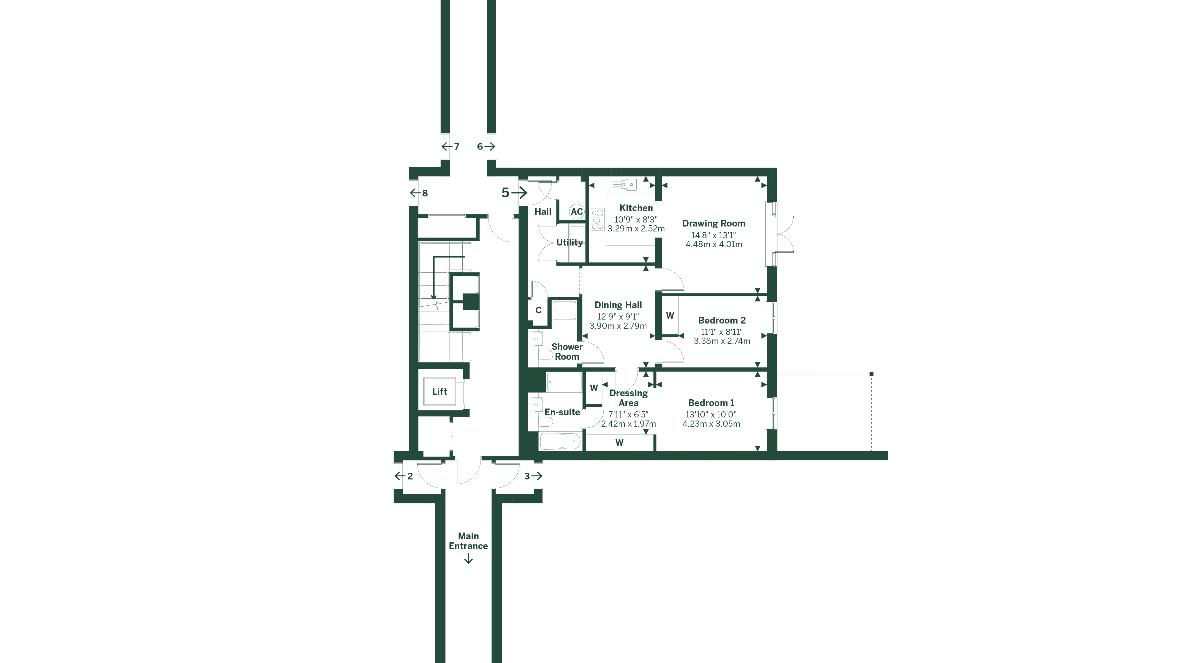
Walk into this two-bedroom ground floor apartment and the first – and lasting impression – is one of light and space.
At the heart of the apartment is a dining hall – flexible living space ideal for use as a dining room, reading room or simply as an impressive reception space. Just off the dining hall is an elegant drawing room, with glazed double doors opening onto the terrace and private garden. This will certainly be the perfect place to relax on warm summer days.
The kitchen, just off the drawing room, is fitted with elegant, bespoke cabinets and high-quality integrated appliances.
The principal bedroom is approached through the dressing area, which comes complete with fitted wardrobes and the en-suite features a bath, shower, vanity unit and fitted mirrors. Equal care and attention has been paid to the separate shower room, conveniently located just across the hall from the guest bedroom.
* Photos are indicative, and may not exactly represent the final property.
Estate Management
Grounds maintenance
Alarm monitoring
Building insurance
Professional fees
Contribution to reserve fund
External repairs & maintenance
Window cleaning
Electric-fired wet underfloor heating system
Internal air source heat pump providing heating, hot water and a whole house ventilation system
Whole house ventilation system providing filtered air to all principle living rooms, removing odours, aiding respiration and keeping temperatures consistent resulting in savings on energy bills
Stone surround with wood burning effect electric fire
Double glazed UPVC windows
Low energy fitment pendant lights
LED downlights to kitchens, sun rooms, dining halls, bathrooms, cloakrooms and en-suites where applicable
Telephone points to the drawing room and bedroom 1
High level TV point in drawing room and bedroom 1
Communal digital TV aerial system and communal Sky Q satellite system outlets to drawing room, bedroom 1 and bedroom 2
Audio door entry system to most apartments
Window locks to all windows†
Security alarm fitted with panic buttons in bedroom 1 and by the front door
Mains operated smoke detectors with battery backup and mains powered Carbon Monoxide detector
10 year warranty issued on build completion (** Longcross Place is registered with ICW and offers a 10-year structural warranty with each new home. ICW are a leading UK provider of building warranties for new homes, which ensures that your home has been built to the highest standards. www.i-c-w.co.uk)
Panelled painted internal doors with polished chrome handles
Light switches and door handles with Safetouch anti-bacterial coating to kill viruses and the spread of bacteria
Fitted wardrobes to bedroom 1 and bedroom 2
Cornice to drawing room and hallway
Coving to all remaining rooms with the exception of kitchens, bathrooms, sun rooms and rooms with sloping ceilings
Moulded skirtings and architraves
Choice of carpet colours to drawing room, dining hall, bedrooms and hall (*subject to stage of construction)
A range of integrated appliances in the kitchen
Stone surround fireplace
10 year warranty
Low energy fitment pendant lights
“A characterful riverside town with a burgeoning foodie scene, indie shopping and the market town essential … Waitrose.”
Reserved
Photo 1 of 1
11 Longcross Place
Photo 1 of 1
14 Longcross Place £520,000
Photo 1 of 1
15 Longcross Place £525,000
Photo 1 of 1
21 Longcross Place £497,500
Sold
Photo 1 of 1
1 Longcross Place
Sold
Photo 1 of 1
2 Longcross Place
Sold
Photo 1 of 1
6 Longcross Place
Sold
Photo 1 of 1
7 Longcross Place
Sold
Photo 1 of 1
13 Longcross Place
Sold
Photo 1 of 1
16 Longcross Place
Sold
Photo 1 of 1
17 Longcross Place
Reserved
Photo 1 of 1
18 Longcross Place
Sold
Photo 1 of 1
19 Longcross Place
Sold
Photo 1 of 1
22 Longcross Place
Reserved
Photo 1 of 1
23 Longcross Place
18 August 2023
For retirement specialist, Beechcroft, Wallingford is a particularly important location. It is home to the company’s head office…
Read more30 September 2024
Energy bills in the UK are predicted to rise further in 2025 due to issues that have increased wholesale energy costs.
Read more26 July 2022
More leisure time, fresh challenges and choices make retirement an exciting time, full of new opportunities. If your family has…
Read moreWe know you value your independence but with a community of like-minded neighbours, you’ll have convivial company on hand and the opportunity to forge firm and lasting friendships.
Learn moreWhether you’re choosing a home in a favourite location, relocating in the same area or moving closer to family and friends, you’ll discover a Beechcroft home will mean more leisure time to spend with family.
Learn moreBuying Beechcroft means coming home to beautiful bathrooms and en-suites with spacious double showers, vanity units and mirrors, stylish hand-made kitchens with all the integrated appliances you’ll need, underfloor heating – and a host of luxurious touches.
Learn more